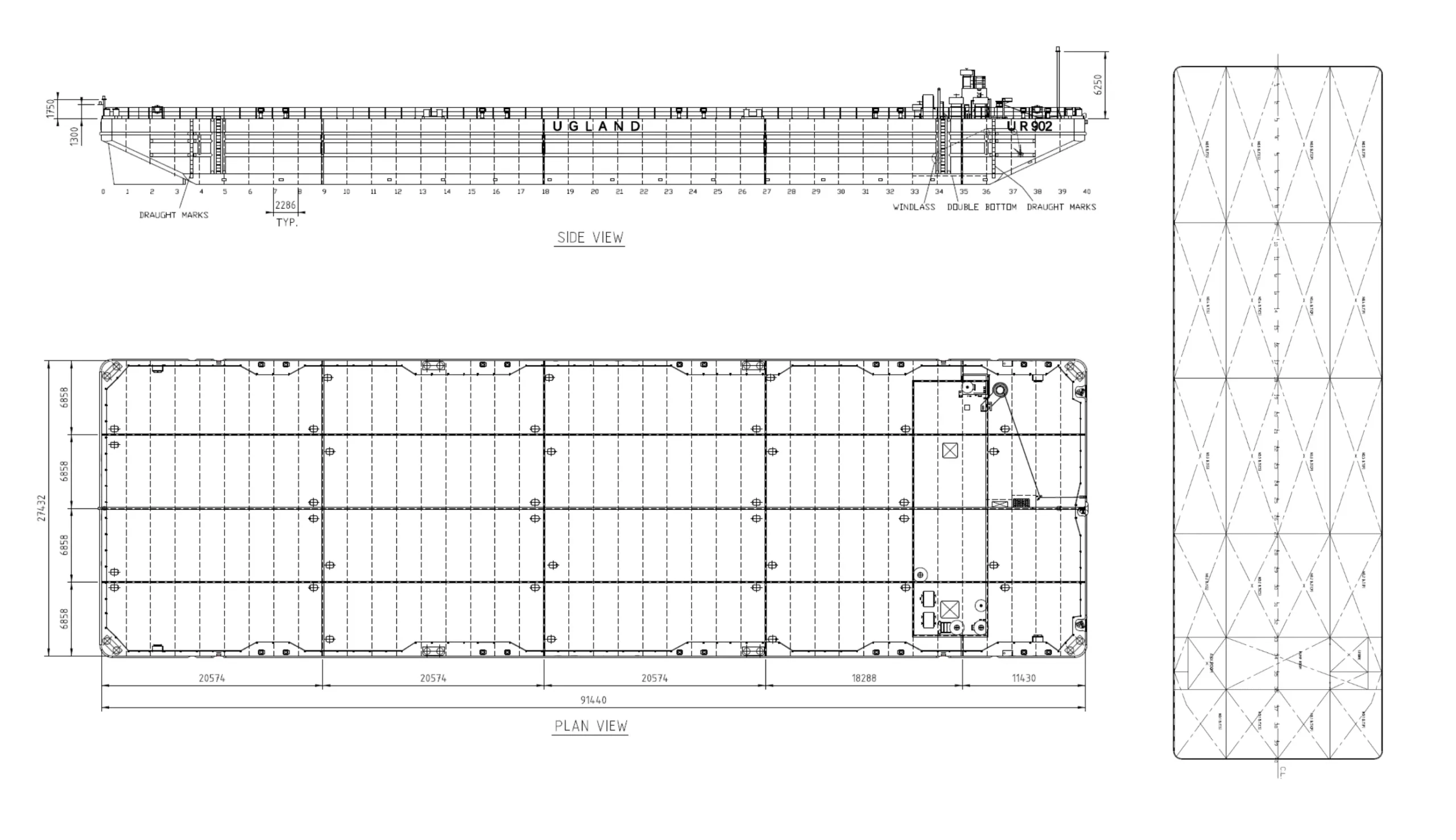
Length: 91,4 m | Beam: 27,4 m | Depth: 6,096 m
Deck area of 2 508 m2
High deck strength of 30 t/m2
1200 m3 /h ballasting capacity
BWTS IMO & USCG approved
DNV Class & Norwegian Flag